Барнхаус 97 №923

Цена строительства от 4 600 000 ₽* * Стоимость не является окончательной
Заявка на консультацию
  • Общая площадь 85 м2
  • Материал стен Каркасно-панельные
  • Количество этажей 1
  • Подвал Нет
  • Мансарда без мансарды
  • Гараж Нет
  • Терраса Нет
  • Проживание Круглогодичное
  • Количество комнат 4
  • Количество спален 3
  • Количество санузлов 1
  • Вид проекта дом
  • Застройщик МоноЛит
  • Архитектурный стиль Барнхаус
  • Отделка фасада Комбинированная
  • Крыша Двускатная
  • Можно купить домокомплект Да
  • Модульный тип строения Нет
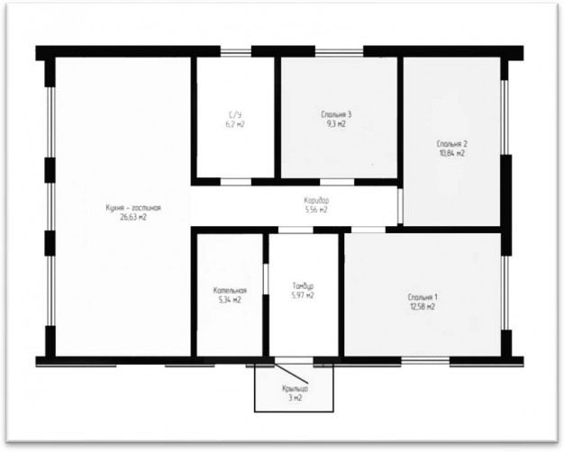
Планировки
Описание проекта

Просторный Барнхаус 97 м² – идеальное решение для комфортной жизни семьи.

Благодаря продуманной планировке и панорамному остеклению создаётся ощущение простора и свободы. В доме органично сочетаются современный дизайн и функциональность.

Удобная планировка делают этот дом особенно привлекательным для тех, кто ценит уют и практичность. Отличное решение для постоянного проживания.

Комплектации:

ДОМОКОМПЛЕКТ 1 640 000 р.

СТАНДАРТ 4 600 000 р.

КОМФОРТ 5 200 000 р.

КОМФОРТ+ 7 200 000 р.

Вас может заинтересовать
Вас может заинтересовать

Выбор местоположения

Задать вопрос / написать нам

E-mail: domgis@mail.ru

Мы свяжемся с Вами в течение дня.

Тех. поддержка
Предмет обращения:
Тукущая страница

Мы свяжемся с Вами в течение дня.

Уведомление
Предмет обращения:
Тукущая страница
Обратный звонок
Обратный звонок
Выберите ваш город
Пожаловаться

Объявление опубликовано.
Изменения сохранены

Период публикации - бессрочный, при условии подтверждения актуальности каждые 50 дней. Уведомления будут отправляться на Вашу электронную почту.

Выберите причину снятия с публикации

Снятые с публикации объявления не участвуют в поиске и недоступны для подробного просмотра.

Для повторной публикации нажмите «Вернуть в публикацию»