Артемида №438

Цена строительства от 3 853 000 ₽* * Стоимость не является окончательной
Заявка на консультацию
  • Общая площадь 131 м2
  • Длина 9.07 м
  • Ширина 11.42 м
  • Материал стен Каркасно-панельные
  • Количество этажей 1
  • Подвал Нет
  • Мансарда без мансарды
  • Гараж Нет
  • Терраса Да
  • Проживание Круглогодичное
  • Количество комнат 4
  • Количество спален 3
  • Количество санузлов 1
  • Вид проекта дом
  • Застройщик МАЛОЭТАЖНЫЕ ДОМА
  • Архитектурный стиль Хай-тек
  • Отделка фасада Комбинированная
  • Крыша Плоская
  • Можно купить домокомплект Нет
  • Модульный тип строения Нет
Планировки
Описание проекта

Проект Артемида – это оригинальный СИП дом в стиле хай-тек, двухэтажный, с просторными террасой и балконом, а также плоской крышей.

В архитектуре и планировке дома есть несколько интересных деталей. В первую очередь нужно отметить опоясывающий половину дома балкон. Часть балкона прикрыта крышей, а фрагмент, который прикрывает собой террасу – открыт. Это дает возможность как принимать солнечные ванны на балконе, так и спокойно пообедать в тени террасы.

Дом разделяется на две части лестницей на второй этаж. Одна часть имеет выход на балкон и террасу, на второй расположено крыльцо и технические помещения.

Небольшое крыльцо (1,82 м2) позволяет попасть в прихожую (5,2 м2). За прихожей вход в санузел (8.18 м2) и здесь же расположены холл (4,87 м2), лестница на второй этаж и кладовая (1,72 м2). Над технической частью первого этажа расположена спальня площадью более 15 м2.

Во второй части доме на первом этаже большая кухня-гостиная, площадью 22,9 м2. Из гостиной есть выход на крытую террасу (23,46 м2).

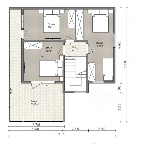
На втором этаже холл площадью 2,31 м2 и три спальни. Про одну мы еще упоминали. Еще две имеют выходы на балкон и площадь 11,45 и 11,31 квадратных метра. Также стоит упомянуть балкон размером без малого 23 м2.

Дом очень хорош для теплых регионов. В нем есть буквально все что нужно. Затененная терраса, открытый солнцу балкон, большие окна и определенный простор для фантазии. Мы дорабатываем проекты по запросу заказчика и здесь можно достаточно легко сделать небольшой балкон над крыльцом, или же длинную 15-ти метровую спальню можно уменьшить ради дополнительного санузла. Дом из СИП панелей до 150 м2 в числе самых популярных форматов. В таком доме отлично живется семье из 4 человек и при этом затраты на отопление совсем не велики.

Вас может заинтересовать
Вас может заинтересовать

Выбор местоположения

Задать вопрос / написать нам

E-mail: domgis@mail.ru

Мы свяжемся с Вами в течение дня.

Тех. поддержка
Предмет обращения:
Тукущая страница

Мы свяжемся с Вами в течение дня.

Уведомление
Предмет обращения:
Тукущая страница
Обратный звонок
Обратный звонок
Выберите ваш город
Пожаловаться

Объявление опубликовано.
Изменения сохранены

Период публикации - бессрочный, при условии подтверждения актуальности каждые 50 дней. Уведомления будут отправляться на Вашу электронную почту.

Выберите причину снятия с публикации

Снятые с публикации объявления не участвуют в поиске и недоступны для подробного просмотра.

Для повторной публикации нажмите «Вернуть в публикацию»