PODIUM №880

Цена строительства от 6 800 000 ₽* * Стоимость не является окончательной
Заявка на консультацию
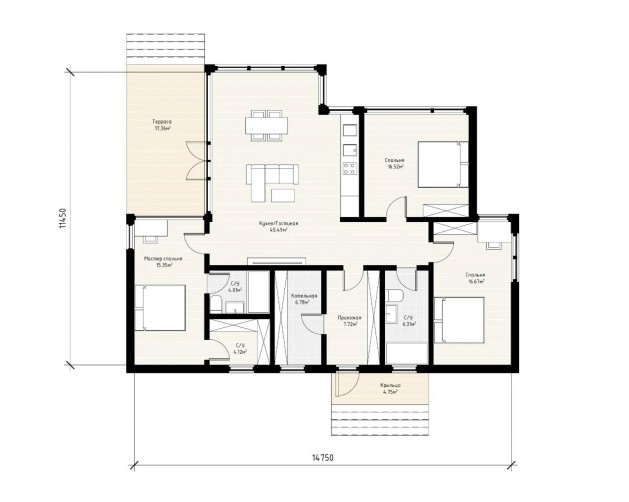
  • Общая площадь 123 м2
  • Длина 14.75 м
  • Ширина 11.45 м
  • Материал стен Каркас
  • Количество этажей 1
  • Подвал Нет
  • Мансарда без мансарды
  • Гараж Нет
  • Терраса Да
  • Проживание Круглогодичное
  • Количество комнат 4
  • Количество спален 3
  • Количество санузлов 2
  • Вид проекта дом
  • Застройщик RAYTHOUSE
  • Архитектурный стиль Современный
  • Отделка фасада Обшивка деревом
  • Крыша Двускатная
  • Можно купить домокомплект Нет
  • Модульный тип строения Нет
Планировки
Описание проекта

Представляем вашему вниманию проект современного одноэтажного каркасного дома PODIUM.

Просторные комнаты, высокие потолки и открытые планировки создают ощущение свободы.

Проект PODIUM предусматривает рациональное использование жилого пространства, обеспечивая комфортное проживание для каждого члена семьи.

Дом оборудован большими панорамными окнами, которые обеспечивают попадание максимального количества естественного света.

Цены указаны за дом на сваях

Варианты комплектаций:

Тёплый контур без фасада - 6 765 000 р.

Тёплый контур с фасадом - 8 056 500  р.

Предчистовая без фасада - 9 348 000 р.

Предчистовая - 10 332 000 р.

Предчистовая + отделка С/У - 10 885 500 р.

Под ключ - 12 238 500 р.

Вас может заинтересовать
Вас может заинтересовать

Выбор местоположения

Задать вопрос / написать нам

E-mail: domgis@mail.ru

Мы свяжемся с Вами в течение дня.

Тех. поддержка
Предмет обращения:
Тукущая страница

Мы свяжемся с Вами в течение дня.

Уведомление
Предмет обращения:
Тукущая страница
Обратный звонок
Обратный звонок
Выберите ваш город
Пожаловаться

Объявление опубликовано.
Изменения сохранены

Период публикации - бессрочный, при условии подтверждения актуальности каждые 50 дней. Уведомления будут отправляться на Вашу электронную почту.

Выберите причину снятия с публикации

Снятые с публикации объявления не участвуют в поиске и недоступны для подробного просмотра.

Для повторной публикации нажмите «Вернуть в публикацию»