Сварог №770

Цена строительства от 5 630 000 ₽* * Стоимость не является окончательной
Заявка на консультацию
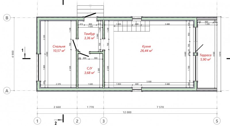
  • Общая площадь 66 м2
  • Длина 12 м
  • Ширина 4.9 м
  • Материал стен Каркас
  • Количество этажей 2
  • Подвал Нет
  • Мансарда без мансарды
  • Гараж Нет
  • Терраса Да
  • Проживание Круглогодичное
  • Количество комнат 3
  • Количество спален 2
  • Количество санузлов 1
  • Вид проекта дом
  • Застройщик Мироздание
  • Архитектурный стиль Барнхаус
  • Отделка фасада Металл
  • Крыша Двускатная
  • Можно купить домокомплект Нет
  • Модульный тип строения Нет
Планировки
Описание проекта

Наши дома по каркасной технологии строятся из высококачественных материалов: сухая строганная доска, пароизоляция 200мкм, прочная ветровлагозащита, экологичный и "вечный" утеплитель из полиэфирных волокон, который сейчас используют в детских зимних куртках. Мы смело можем утверждать, что в этом доме ваши дети смогут растить своих детей!

Дом по каркасной технологии: сваи 108мм - под домом, 89мм - под терассой. Каркас из сухой строганной доски, стыки утеплены, составые доски проклеены. Утеплитель "Лотэкс" из полиэфирного волокна (не имеет усадки, срок службы <50 лет). Пароизоляция 200мкм, стыки проклеены скотчем Delta. Ветрозащита Ondutiss Pro AM 150, внутрення отделка - гипсокартон. Кровля 0,5 мм. Окна: профиль - Veka, фурнитура - Maco. Дверь входная с тройным уплотнителем и терморазрывом. Теплый пол по всему контуру дома, полусухая стяжка 8мм, ламинат (3 цвета на выбор). Бойлер и электрический котёл. Водоподведение и разводка сантехники. Вся электрика и вентиляция для вашего удобства.

Вас может заинтересовать
Вас может заинтересовать

Выбор местоположения

Задать вопрос / написать нам

E-mail: domgis@mail.ru

Мы свяжемся с Вами в течение дня.

Тех. поддержка
Предмет обращения:
Тукущая страница

Мы свяжемся с Вами в течение дня.

Уведомление
Предмет обращения:
Тукущая страница
Обратный звонок
Обратный звонок
Выберите ваш город
Пожаловаться

Объявление опубликовано.
Изменения сохранены

Период публикации - бессрочный, при условии подтверждения актуальности каждые 50 дней. Уведомления будут отправляться на Вашу электронную почту.

Выберите причину снятия с публикации

Снятые с публикации объявления не участвуют в поиске и недоступны для подробного просмотра.

Для повторной публикации нажмите «Вернуть в публикацию»